Meet, The Victoria

Classic American Home Expertly Designed

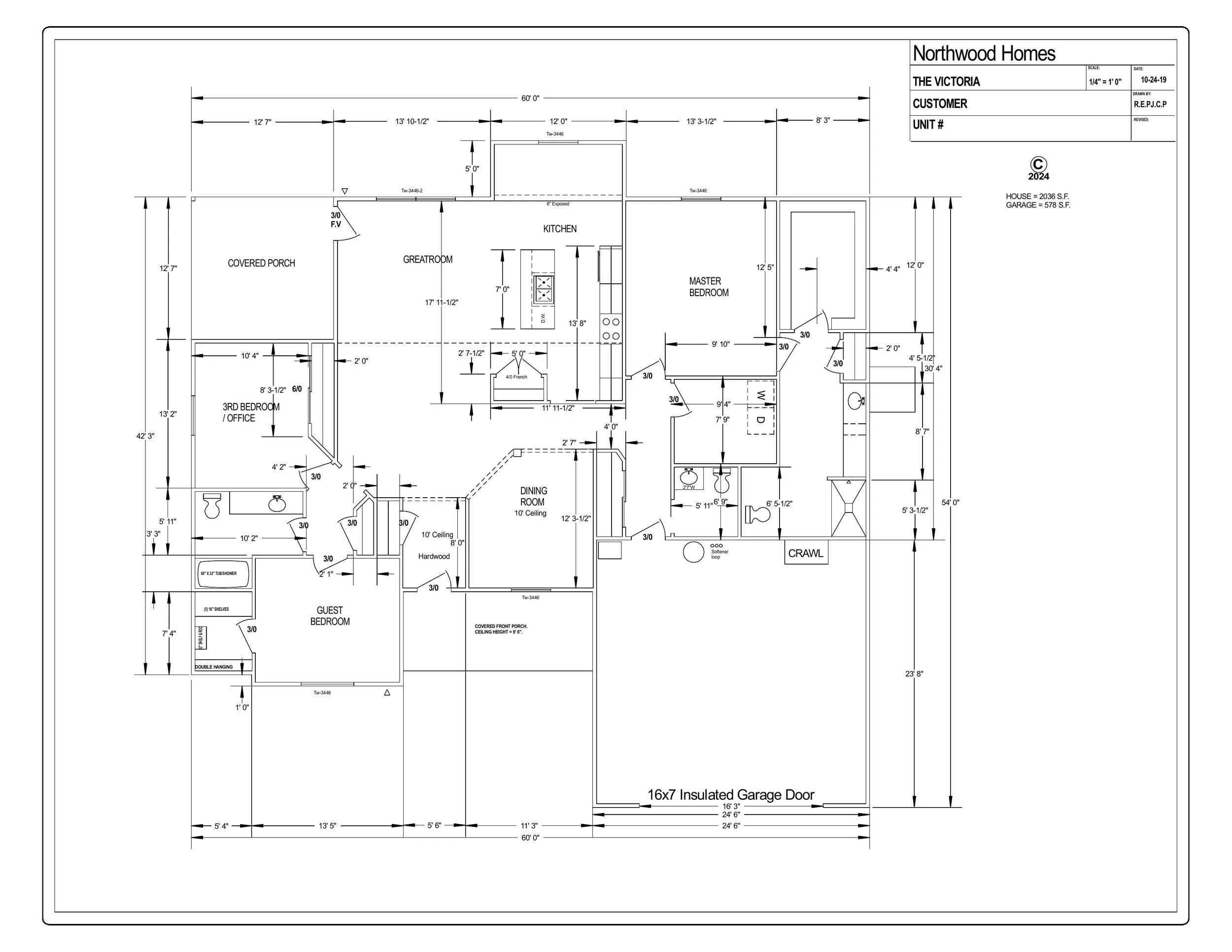
A thoughtfully designed ranch home offering comfort, clarity, and long-term livability. The Victoria features a split-bedroom layout with the primary suite privately separated from the secondary bedrooms, wide hallways and doorways throughout, and a traditional yet efficient floor plan.

Interior finishes include custom Amish-built cabinetry, stained wood doors and trim, and well-proportioned living spaces. Covered front and rear patios extend the home outdoors, while a two-car attached garage provides everyday convenience.

Plan Overview

  • 3 Bedrooms | 2.5 Bathrooms

  • Split-bedroom ranch layout

  • Formal dining room

  • Custom Amish cabinetry

  • Stained wood doors and trim

  • 4' wide hallways

  • 3' wide interior doors

  • Covered front and rear patios

  • Large walk-in closet in primary suite

  • 2-car attached garage

Square Footage

  • Living Area: 2,036 sq ft

  • Covered Porches: 275 sq ft

  • Garage: 578 sq ft

Important Notes

Lot not included. Home price will vary based on final selections and scope.

Purchase of the lot does not require you to build with Northwood Homes..

Price Catagory: $400k+

Continue to lot listing- Click Here